Exemplos de como aproveitar bem o espaço
Muitas vezes nos deparamos com projetos nos quais precisamos combinar uma série de usos em um só lugar, ou ainda, garantir a integração de espaços, sem comprometer ventilação e iluminação natural.
Para este propósito, é interessante pensar em aproveitar cada centímetro do espaço disponível de maneira otimizada e criativa.
Reunimos a seguir nove projetos de interiores brasileiros que enfrentam problemas diferentes e chegam em soluções interessantes que dão identidade ao projeto.
Apartamento Muxarabi / Pietro Terlizzi Arquitetura
O apartamento de 45m² precisava integrar sala, dormitório, escritório, cozinha e sala de jantar.
Para isso, o projeto propõe muxarabis móveis entre o quarto e a sala, criando uma transição visual entre os dois espaços a partir de um muxarabi mecânico que funciona também como fundo tanto para a televisão, quanto para a cama.
Ao mesmo tempo, o projeto aproveita para incluir uma mesa de escritório como organizadora do espaço maior, repartindo a sala em dois, um lugar de jantar e outro de estar.


Apartamento 33 / Soek Arquitetura
Este apartamento de 33 metros quadrados resolve todos os espaços a partir de uma única marcenaria, a qual abriga armários, eletrodomésticos e o acesso ao banheiro e à cozinha.
Na perspectiva de que é cada vez mais comum espaços mínimos de viver, esta habitação armazena todos os itens vitais, permitindo a interação com um espaço livre que pode assumir a utilidade necessária, seja como dormitório, sala de jantar, estar e etc.


Duplex Curva / Mandarina Arquitetura
Na reforma deste duplex de 110 m² o segundo pavimento recebeu um elemento curvo de madeira que, além de trazer movimento e dinamismo, funciona compondo o lavabo, portinhas que revelam uma bancada de escritório embutida, um nicho no qual a TV, que corre por trilhos, pode ser totalmente escondida, e por fim, os armários altos da cozinha. Em um só elemento se resolvem os espaços de armazenamento e organiza-se o fluxo e os usos, trazendo também identidade ao projeto.


Loft de campo / As Ferreiras arquitetura
Este loft foi projetado em um contêiner marítimo de 40 pés, que soma 30 m².
Para este espaço, que além de reduzido é estritamente linear, foi importante lidar com a organização dos fluxos e funções e também com a transparência na materialidade.
O contêiner foi setorizado em quatro ambientes, dispostos linearmente, precisamente em: estar, cozinha, dormitório e banheiro, proporcionando a integração dos ambientes e uma circulação confortável para o usuário, além de oferecer uma visualização completa do ambiente,


Apartamento Simpatia / Lez Arquitetura
Neste loft com mezanino de 44m² há duas importantes soluções para integração de espaços em apartamentos pequenos.
Primeiramente o uso do espaço debaixo da escada. O projeto aproveita para incluir a bancada da cozinha, a geladeira e a máquina de lavar roupas. Uma segunda solução se dá no mezanino, em relação à iluminação e ventilação do banheiro.
Usualmente plantas desse gênero optam por deixar o banheiro sem iluminação e ventilação natural.
Em um esforço para reverter isso, o projeto opta por colocar caixilhos operáveis com vidro para limitar os espaços e permitir a troca de ar.


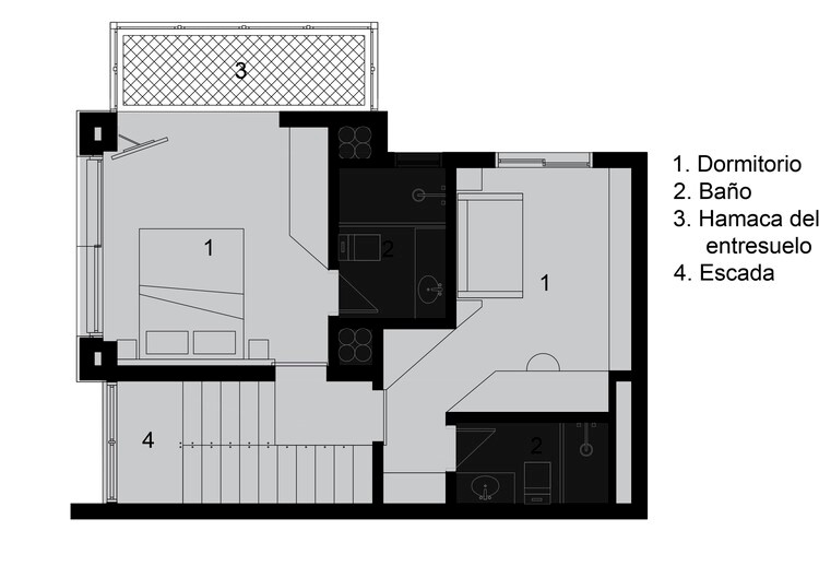
Apartamento Monet / B2F
Este apartamento de 105 m² mostra que nem só os espaços pequenos precisam de soluções engenhosas.
Nesta reforma, a supressão de uma parede que fazia a comunicação entre o mezanino e o térreo, e sua substituição por uma rede de descanso próxima da janela, garante comunicação, integração de espaços e promove mais uma área de estar, pouco convencional, para os moradores.


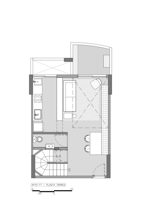
Apartamento FT / Shinagawa arquitetura
Este apartamento de 70 m² tem duas estratégias interessantes de projeto.
Primeiramente, o térreo do duplex se organiza a partir de dois móveis planejados, o primeiro, um aparador que mistura serralheria e marcenaria e que tem a função de balcão, aparador e armário, e o segundo, um banco revestido com azulejo que percorre todo comprimento do apartamento conectando os ambientes e recebendo várias funções como assento, bancada e móvel para tv e aparelhos.
Além disso, o mezanino se comunica com o térreo a partir de uma superfície translúcida que revela as costas do armário, permitindo que o espaço superior seja iluminado naturalmente, mesmo que indiretamente.
Essa mesma solução é usada para iluminar o banheiro.


Loft on Life / Crippa e Assis Arquitetura
Este loft propõe integrar sala de estar, sala de jantar, cozinha, banheiro, dormitório, escritório e espaço zen em uma área de 70 m².
A planta quadrada se organiza em duas metades, uma social onde fica a sala de estar, jantar e a cozinha e a outra mais íntima, onde ficam o banheiro, quarto, escritório e espaço zen.
A solução chave para toda essa integração, além da organização da planta em dois setores, vem da definição do espaço do escritório a partir da elevação suave de nível do chão, delimitando a área sem nenhuma barreira visual.


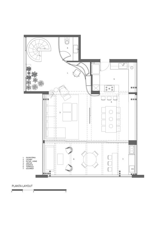
Apartamento Conte / Núcleo de Arquitetura Experimental
O amplo espaço de 130m² deste apartamento foi otimizado a partir de soluções que consideram aproveitar todos os espaços disponíveis.
Aqui, devido a planta longitudinal, aproveitar o espaço sob a escada foi fundamental para a organização do apartamento.
Ao mesmo tempo que se define um espaço de armazenamento debaixo da escada, sua lateral, o corrimão e o guarda corpo, são substituídos por um painel de marcenaria que acomoda a televisão e uma estante.




1 Comentário