Revestindo interiores com madeiras curvadas
Formas curvas sempre despertaram o fascínio de arquitetos por remeterem à beleza da natureza, sua fluidez, dinamismo e complexidade.
Replicá-las, no entanto, não é tarefa fácil.
Da sua representação bi ou tridimensional, até a concretização de formas orgânicas em materiais, isso representa uma enorme dificuldade, que exige perícia técnica e grandes conhecimentos para atingir bons resultados.
Pensar em formas de criar processos industriais de produção de peças com formas orgânicas, a partir de materiais naturais, é ainda mais complicado.
Aliado a isso, trabalhar com um material natural como a madeira carrega suas peculiaridades.
Fatores como a espécie da madeira, onde a árvore cresceu, quais climas ela enfrentou, quando ela foi cortada, de que forma foi fatiada ou seca, entre muitas outras questões, influenciam no resultado final.
Mas é difícil comparar a beleza e o aconchego que as superfícies de madeira trazem aos ambientes.
Se desenvolvidos os devidos processos, a madeira também pode receber uma curvatura e permanecer na forma desejada.
Para tal, há algumas técnicas conhecidas.

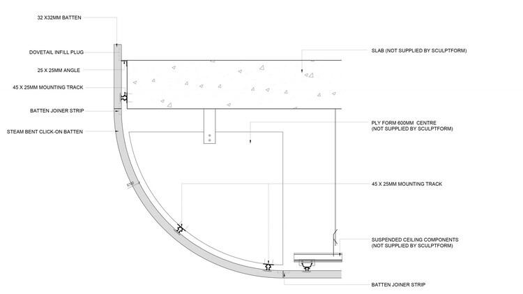
A empresa australiana Sculptform é especializada em desenvolver ripas de madeira curvas, para revestir forros e paredes, permitindo que arquitetos e construtores criem soluções edificáveis e acessíveis para seus conceitos curvos.
Ao trabalhar com peças curvas de madeira em escala comercial, os fatores que precisam ser considerados, dependendo da aplicação pretendida são as espécies de madeira e densidade, os raios de curva desejados e um método de fixação fácil e intuitivo para a obra.

Para criar as formas orgânicas, há dois métodos utilizados:
Steam Bending (Moldagem a vapor)
Ao ser aquecida com o vapor, a madeira apresenta uma maleabilidade, e permanece na forma desejada após o resfriamento.
Esta técnica é somente adequada para peças internas.


Kerfing
Envolve o corte de pequenos entalhes na parte de trás da ripa de madeira para permitir que a madeira seja flexionada em torno de uma subestrutura para criar as formas ou curvas.
As ripas de madeira são fornecidas pré-furadas no local em comprimentos retos, mas flexíveis.
Adequado para interiores e exteriores protegidos.


Cada perfil de madeira, com a forma prevista em projeto, é moldado em fábrica com uma ranhura na parte traseira que serve como interface entre a ripa de suporte e as conexões patenteadas pela empresa.
Por conta disso, a montagem de peças complexas é feita rapidamente em obra.

Um estudo de caso interessante foi o projeto para a sede da empresa, desenvolvida pelo escritório Woods Bagot.
Há um desafio complexo ao projetar um espaço para uma marca, seja um escritório ou uma loja conceitual.
É fundamental que o arquiteto entenda bem sobre a empresa, suas demandas, produtos e sua estética.
Bruno Mendes, arquiteto principal do escritório, aponta que “a ambição era criar um espaço para mergulhar nos produtos e na ética da Sculptform, mostrando a filosofia artesanal da empresa. A arquitetura do estúdio leva os visitantes em uma jornada física pelos processos da empresa – exibindo o espaço da oficina totalmente visível, o CO-lab, que está no centro do projeto. Atendendo a grupos de diversos tamanhos, é um espaço para hospedar a comunidade de design de Melbourne por meio de recursos espaciais integrados, como assentos de auditório e tela oculta”.

“A intenção era criar uma sequência de eventos revelando os vários espaços interiores à medida que as pessoas circulavam naturalmente pelo espaço. A espécie American White Oak é usada no piso, nas paredes e no teto – evocando a experiência de ser envolvido pela madeira distinta. Como um elemento de orientação, a maré alta e baixa da madeira significa o caminho através do showroom, retornando ao espaço comum. A jornada se abre para terceiros espaços para trabalho focado, luz natural ou reuniões colaborativas. Esses espaços são destacados em materiais e acabamentos contrastantes. O circuito físico gira em torno do CO-lab, uma oficina para a incubação criativa dos processos do Sculptform e onde os protótipos são criados. Uma parede envidraçada torna as atividades do CO-lab visíveis, trazendo teatralidade para o showroom. Salas de reuniões e espaços de descanso ficam atrás de portas com ripas de madeira para manter a continuidade da impressionante forma curva. Os espaços de trabalho incorporam metodologias ágeis com espaços de reunião versáteis, áreas de reunião stand up e uma mesa de trabalho.”

“O projeto foi uma oportunidade de colaborar em um estudo detalhado da madeira com a Sculptform, que também construiu o espaço e toda a marcenaria personalizada. O processo projetual explorou o potencial do material além de sua forma convencional. Isso resultou na importação de equipamentos da Sculptform não disponíveis em qualquer lugar da Austrália e no desenvolvimento de novas técnicas de produção e aplicação de madeira dobrada a vapor para fornecer as linhas abrangentes exigidas pelo conceito ambicioso”.


O projeto, inclusive, desencadeou mais inovações e a criação de novos produtos que seriam incluídos no catálogo de produtos da empresa.
Segundo Bruno, “com sua experiência na fabricação de produtos e um entusiasmo para ser levado a novos limites, a Sculptform usou tecnologias de dobra a vapor e criou um novo sistema de clipe de pivô que agora faz parte de sua oferta de produtos. O trabalho em madeira apresenta o sistema Click-on Battens, com o projeto do estúdio levando ao desenvolvimento de novos recursos em madeira dobrada a vapor para criar o anteparo curvo”.
Em outras palavras, tecnologia, artesania e criatividade andando juntos.
Expresso.arq sobre artigo de Eduardo Sousa


