Caruaru (PE): Habitação Social em perspectiva

Assim, começa a descrição do projeto, realizada pela própria equipe responsável:localizado na zona sul da área urbana da cidade de Caruaru – PE, próximo a intercessão de duas estradas federais, a BR-232, que liga Recife ao sertão do estado e a BR104, um importante vetor de escoamento da produção do Polo Têxtil da região, o terreno de 48,5Ha foi loteado para implantação de 1300 unidades destinadas ao programa Minha Casa Minha Vida.  

O seu traçado se dá buscando adaptar-se as condicionantes naturais (talvegues e afloramentos de rocha) e com a intenção de ligar todas as ruas do empreendimento com as vias existentes nos loteamentos vizinhos, buscando assim garantir uma maior fluidez do sistema viário.  

Áreas verdes e áreas para equipamentos comunitários foram reservadas segundo as exigências da legislação local, sendo que grande parte dessas áreas verdes já serão entregues executadas pelos empreendedores, quando o mais comum nesses casos é repassar para o poder público essas áreas para que num futuro as mesmas sejam equipadas. 

Levando em consideração que o projeto tinha como foco habitações econômicas, houve a intenção de esquecer a tipologia amplamente repetida da casinha com telhado de duas águas e propusemos uma tipologia mais atualizada com os anseios da casa urbana contemporânea.  

Como a implantação se dá em terreno com topografia acidentada, foi tirado partido de empenas verticais para acentuar a marcação de um ritmo e resolver de forma harmoniosa a questão do desnível encontrado entre uma habitação e outra. 

Todo o partido plástico foi concebido para a composição do coletivo, e tão importante quanto a plástica da casa foi a sua inserção no conjunto. Janelas e aberturas dimensionadas corretamente garantem a devida iluminação e ventilação naturais, racionando assim o uso da energia elétrica.  

Estudo e observação de experiências de pós-ocupação em outros habitacionais, percebemos que a casa padrão sofre, logo nos primeiros anos, interferências de ampliações feitas pelos proprietários, na maioria dos casos, sem o devido acompanhamento de um profissional arquiteto. 

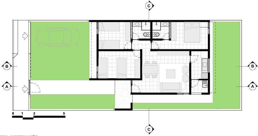
Dessa forma foi imaginada a planta baixa da casa de forma a permitir ampliações já sugeridas pelo projeto de arquitetura. Os moradores já entram na casa sabendo da sua melhor possibilidade de ampliação, e esse discurso vem sendo muito utilizado pelos corretores na hora da comercialização das unidades.  

A casa pode ter configuração com dois quartos (58m²) dois quartos sendo 01 suíte (61m²) ou três quartos sendo 01 suíte (73m²). 

Expresso.arq com informações de Matheus Pereira / Jirau Arquitetura 
Imagens: Divulgação 

Quer receber mais conteúdos como esse gratuitamente?

Cadastre-se para receber os nossos conteúdos por e-mail.

Email registrado com sucesso
Opa! E-mail inválido, verifique se o e-mail está correto.
Ops! Captcha inválido, por favor verifique se o captcha está correto.

Fale o que você pensa

O seu endereço de e-mail não será publicado.