Evolução da planta residencial: da Revolução Industrial ao período entre Guerras

A introdução de novas técnicas e materiais, juntamente com as inovações na infraestrutura, resultantes da revolução industrial, abriu o caminho para a habitação vertical.

Investigando especificamente um período de tempo em que um fluxo populacional foi direcionado para as cidades e as divisões de classes sociais foram questionadas, este artigo analisa a evolução da planta residencial na Europa entre 1760 e 1939.

Estudando a transformação da unidade habitacional durante a revolução industrial até o período entre guerras, este artigo destaca quatro exemplos proeminentes que repensaram os layouts tradicionais e responderam aos desafios de sua época.

Ainda hoje influentes, os modelos mencionados, restaurados para uso, fazem parte do tecido urbano do século XXI. Localizados em Londres, Paris, Amsterdã e Moscou, as plantas mostram os padrões de bem-estar interior em constante mudança, diretamente ligados a uma metamorfose mais ampla, equalizando e proporcionando o crescimento das populações urbanas.

Descubra a evolução das unidades habitacionais, desde as casas geminadas até as cidades-jardim da Inglaterra; o Bloco de Haussmann, uma vida vertical para uma burguesia moderna; a Extensão de Amsterdã, das Alcovas aos Blocos de Habitação Social; e a Transition Type House na Rússia.

Casas Geminadas às Cidades-Jardim na Inglaterra

À medida que a revolução industrial conduzia a um fluxo massivo de população em direção às cidades e a um número crescente de trabalhadores de classe baixa, tipos de habitação adicionais estavam sendo criados.

Enquanto alguns desses alojamentos do início do século XiX surgiram organicamente, outros foram frutos de esforços governamentais e de caridade para alocar o número crescente de trabalhadores com baixa renda.

via ClemRutter

Por um lado, os ricos haviam se mudado para as residências de vários andares, que ostentavam tetos altos e ornamentação em estilo eclético opulento.

Por outro lado, os trabalhadores muitas vezes eram deixados ocupando chalés abandonados, sótãos ou habitações paroquiais, quer fossem instaladas pela igreja ou por iniciativas privadas através de casas de correção.

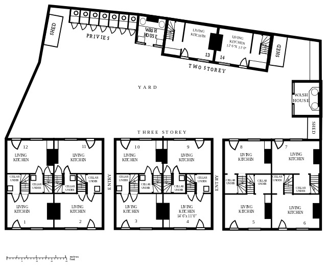
Mas um dos tipos de habitação mais populares eram essa espécie precária de casas geminadas nas cidades industriais do interior e norte da Inglaterra.

O conjunto de casas adjacentes (2 a 3 andares) sugeria um modelo de interiores extremamente pequenos, com quartos individuais empilhados com menos de 15m².

Elas normalmente apresentavam cozinha e o banheiro no térreo e um ou dois quartos no primeiro andar.

Às vezes, poderiam até incluir um pequeno sótão e quintal.

No entanto, não tinham aberturas ou janelas suficientes, com apenas uma fachada exposta.

As casas geminadas da época abrigavam várias famílias em uma única habitação.

Como essas moradias estavam sendo construídas ao lado de indústrias pelos próprios trabalhadores, muitas tentativas legislativas foram feitas para proibir sua construção sendo finalmente proibidas em 1909.

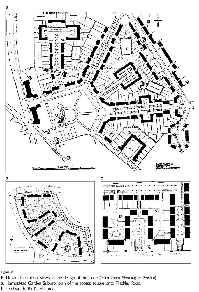
Plantas para Cidades-Jardim

O modelo das cidades-jardim foi, então, sugerido como uma solução possível a partir dos anos 1890, oferecendo um modelo de vida mais singular, privado e abrangente.

No subúrbio ajardinado de Hampstead, por exemplo, foi dada atenção à criação de uma sensação comunitária e de vizinhança entre chalés bem localizados, originalmente destinados a misturar todas as classes sociais.

Eles foram sonhados como comunidades ideais.

A abertura entre o interior e o exterior através de jardins privados e vistas panorâmicas foi outra consideração que proporcionou conforto aos habitantes.

O bloco de Haussmann: vida vertical para uma burguesia moderna

Composição da fachada do boulevard Pereire. Imagem via Urban Forms: The Death and Life of the Urban Block por Ivor Samuels, Phillippe Panerai, Jean Castex, Jean Charles Depaule

Paris, a maior cidade industrial do mundo em meados do século XIX, viu sua população dobrar.

Entre 1853 e 1882, tornou-se uma cidade Haussmanniana, para a moderna sociedade burguesa.

Modernizando, higienizando e melhorando as condições de vida e as infraestruturas, essa transformação criou, não só, mas essencialmente, um modelo espacial específico, derivado da lógica burguesa.

Quadras e dimensões Haussmann. Imagem via Urban Forms: The Death and Life of the Urban Block por Ivor Samuels, Phillippe Panerai, Jean Castex, Jean Charles Depaule

A malha do plano Haussmaniano gerou blocos triangulares específicos, mas também retangulares.

Dividida em parcelas, a própria quadra parecia uma única construção, principalmente pela associação de elementos idênticos.

A cada 3 ou 4 lotes, havia um pátio de forma quadrada, fonte de ventilação e iluminação.

No mesmo edifício, não havia combinação do espaço de vida da burguesia e o local de fabricação.

De fato, “na cidade haussmaniana, o local de trabalho foi excluído do bloco residencial privado”.

De acordo com o livro Urban Forms, the death and life of the urban block, embora na transformação de Haussmann “a sequência dos espaços internos tenha sido reduzida, uma hierarquia mínima de lugares permaneceu”.

As moradias com disposição regular ficavam de frente para a rua e eram acessíveis diretamente pelo hall. O verso da trama, devido à geometria, permitia unidades menos planejadas, sem dupla orientação.

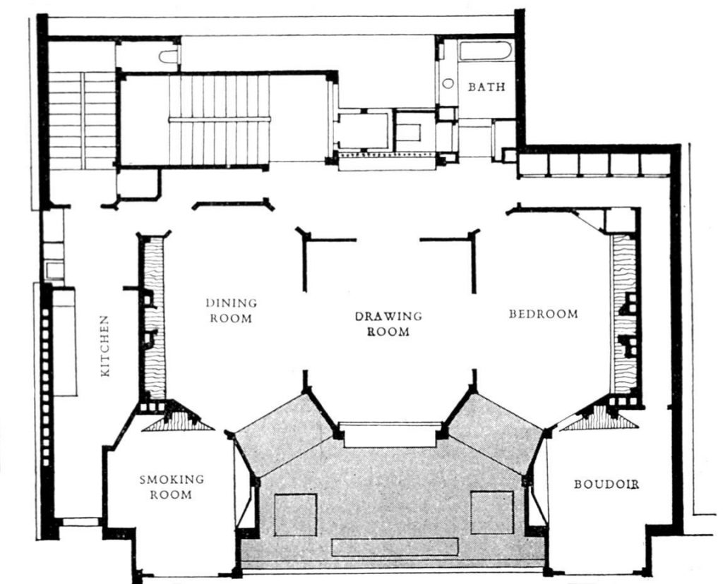
Planta Apartamento – rue Franklin – Auguste Perret 1902. Imagem via Wikimedia

Apoiando o surgimento de uma nova sociedade civil, cada edifício reuniria várias famílias de diferentes classes sociais sob o mesmo teto.

O segundo andar tinha uma varanda e era reservado para as famílias mais ricas.

Os apartamentos do 3º e 4º andar foram destinados à pequena burguesia, enquanto o 5º foi reservado para as classes populares, assumindo uma varanda menor, por razões estéticas.

O último andar, o “quarto de empregada”, era para os funcionários, com quartos menores e banheiros compartilhados.

Ele tinha acesso direto às cozinhas dos apartamentos do edifício, a partir de uma escada de serviço.

Por outro lado, no interior, cada apartamento possuía uma grande antecâmara que conduzia a um corredor que servia as várias divisões adjacentes da fachada: sala de jantar, sala de estar, quartos e hall, enquanto os banheiros se localizavam no lado do pátio interior.

A extensão de Amsterdã: das Alcovas aos Blocos de Habitação Social

Plantas de casas em Amsterdã no início do século. Imagem via Urban Forms: The Death and Life of the Urban Block por Ivor Samuels, Phillippe Panerai, Jean Castex, Jean Charles Depaule

De 1850 a 1920, embora a população de Amsterdã tenha crescido quase três vezes, a cidade não aumentou de tamanho.

A modernização da cidade começou efetivamente quando o canal do Mar do Norte foi executado, e Kalf estabeleceu o plano de extensão de 1875.

Deixando a construção para os incorporadores, estabeleceu-se um claro contraste entre os bairros burgueses e os bairros operários, especialmente com a introdução de “casas de alcova” ou casas muito pequenas de 20 metros quadrados, um cômodo por família, com cabines para camas em recantos na cozinha.

Em alguns casos, a necessidade de adensamento levou a medidas extremas, as pessoas estavam usando todos os espaços disponíveis para habitação, incluindo sótãos e subsolos.

No final do século XIX, surgiu um novo tipo de construção de vários andares, fornecendo todas as funções atuais: habitação, negócios e armazenamento de mercadorias, comércio e indústria de pequena escala.

Sem prestar atenção às condições de vida, nasceu a revolutiebouw, ou fenômeno da construção da revolução.

Spaarndammer, lado norte. Imagem via Wikimedia

Spaarndammer, lado sul. Imagem via Wikimedia

Michel de Klerk, o futuro líder da Escola de Amsterdã, começou a refletir nessa época sobre a crise e traçou os planos de um bloco de habitação social.

Uma clara inovação tipológica, no período 1913-1921, o bloco não é mais concebido como uma unidade intercambiável, mas se desenvolveu em uma organização mais complexa, garantindo a continuidade do tecido e permitindo a integração de diferentes funções como habitação, comércio e infraestrutura para gerar espaços diversos.

Enquanto as edificações nas ruas respeitaram o alinhamento, os pátios dos fundos ocuparam toda a profundidade do terreno.

A quadra possuía um espaço interno utilizado coletivamente com saídas na rua por meio de alpendres.

Impulsionadas pelo desejo de dar a cada família operária uma habitação individual, as unidades habitacionais reproduzem na medida do possível as características da casa tradicional holandesa com um térreo aberto diretamente para a rua, um pequeno jardim na parte posterior e um quarto no primeiro andar”.

Segundo o livro Urban Forms, the death and life of the urban block o centro gerou espaços posteriores privados para a habitação térrea que, em conjunto, formaram um pátio, acessível a partir da rua através de uma passagem controlada.

Como a fachada da rua fazia referência à qualidade arquitetônica urbana, vãos estreitos e salientes alternados correspondiam às escadarias e as cozinhas, enquanto vãos amplos correspondiam a varandas.

Além disso, a sala de estar, tradicionalmente em planta livre, era assinalada por um vão mais importante do que os restantes quartos.

Eigen Haard. Spaarndammerplantsoen, Amsterdã, 1916. Imagem via Wikimedia
Eigen Haard. Spaarndammerplantsoen, Amsterdã 2002 under license CC BY-SA 4.0. Imagem via Wikimedia

Finalmente, o desenvolvimento de Amsterdã foi, portanto, fundado nos princípios da habitação coletiva.

Moderna e progressiva, a extensão da cidade, realizada entre 1913 e 1934, não desafiou o tecido urbano existente, mas experimentou na atual quadra urbana, explorando células habitacionais e seu conjunto.

Transition Type House na Rússia

© Ivan Muraenko

O Narkomfin construído entre 1928-1930 pelo arquiteto e teórico principal do construtivismo soviético Moisei Ginzburg, é um edifício do tipo transição.

Foi uma tentativa de transformar a habitação individual em moradia comunitária.

Oferecia um padrão de vida confortável e bem planejado, com quartos típicos e muita luz natural através das janelas contínuas em fita.

No entanto, nem todos os ambientes tinham comodidades privadas e destinavam-se apenas a fins residenciais.

O resto das funções domésticas eram, na maioria dos casos, compartilhadas e espalhadas por todo o prédio de cinco andares.

Isso inclui banheiros, cozinha e outras áreas comuns.

As plantas da Narkomfim sugerem uma composição muito bem estruturada e organizada, oferecendo abundante espaço para os ambientes comunitários e uma circulação prática para promover as interações entre os usuários.

Todas as áreas são delineadas pelas colunas estruturais da grade.

Embora este modelo experimental possa parecer atraente para os usuários de hoje, faltava-lhe o elemento de privacidade e era frequentemente criticado por condições rígidas e disputas sobre o uso das áreas comuns.

Expresso.arq sobre artigo de Hana Abdel & Christele Harrouk | Traduzido por Camilla Sbeghen

Quer receber mais conteúdos como esse gratuitamente?

Cadastre-se para receber os nossos conteúdos por e-mail.

Email registrado com sucesso
Opa! E-mail inválido, verifique se o e-mail está correto.
Ops! Captcha inválido, por favor verifique se o captcha está correto.

Fale o que você pensa

O seu endereço de e-mail não será publicado.